Проектування ванної кімнати – один із найскладніших етапів дизайну інтер’єру. Це простір, який має бути функціональним, довговічним та естетично привабливим, а помилки, допущені на цьому етапі, можуть бути дуже дорогими для виправлення.
Добре підготовлений дизайн може допомогти уникнути цих проблем і забезпечити, щоб ваша ванна кімната функціонувала саме так, як має бути, день у день. Якщо ви не знаєте, як до цього підійти, ось 10 правил, які матимуть реальне значення.
Які найважливіші правила облаштування ванної кімнати?
1. Почніть з функціонального планування
Кожен дизайн ванної кімнати починається з планування. Це визначає, чи буде інтер’єр комфортним та логічним у використанні. Правильне розташування зон має вирішальне значення: раковина, туалет та душ або ванна. На практиці варто враховувати існуючі з’єднання та стояки, оскільки їх зміна часто означає додаткові витрати. Добре спроектована система – це та, яка не тільки добре виглядає на візуалізаціях, але й, перш за все, добре працює в повсякденному використанні.
2. Адаптуйте ванну кімнату до своїх потреб
Проектування ванної кімнати слід починати з питання: хто і як нею користуватиметься? Проектування простору для пари відрізняється, для сім’ї з дітьми, а для орендованої нерухомості все ж відрізняється. Саме на цьому етапі ви приймаєте рішення, які впливають на функціональність: чи обрати ванну, чи душ, чи потрібна подвійна раковина та скільки місця виділити для зберігання речей. Добре продуманий дизайн – це той, який відповідає реальним потребам своїх користувачів.
👉 Якщо у вас є сумніви щодо того, які рішення будуть для вас найкращими, варто проконсультуватися щодо проекту з дизайнером інтер’єру, оскільки це часто дозволяє уникнути дорогих рішень з самого початку.
Skonsultuj z nami bezpłatnie swoje mieszkanie przed zakupem
3. Зосередьтеся на ергономіці
Ергономіка – це основа добре спроектованої ванної кімнати. Навіть найгарніший інтер’єр буде незручним, якщо не дотримуватися належного простору та пропорцій. Достатній простір перед раковиною, зручний вхід до душової кабіни та вдало підібрана висота монтажу елементів – це речі, які мають реальний вплив на щоденне використання ванної кімнати.
4. Сплануйте відповідне місце для зберігання речей та меблі
Брак місця для зберігання речей – одна з найпоширеніших помилок. Дизайн ванної кімнати повинен враховувати все, що там буде зберігатися, від косметики до засобів для чищення. На практиці найкраще підходять шафи з високою стелею та настінні шафи з раковинами. Такі рішення полегшують прибирання та візуально роблять інтер’єр світлішим. Найменш практичні меблі – це ті, у яких ніжки з низьким просвітом – їх важко ретельно очистити, через що швидко накопичується пил і бруд.
5. Освітлення має першорядне значення
Освітлення ванної кімнати впливає як на функціональність, так і на атмосферу інтер’єру. Добре спроектований простір повинен мати кілька джерел світла: загальне, біля дзеркала та декоративне. Освітлення – це ключ до створення домашнього спа-процедур. Ненав’язливе підсвічування, світлодіодне освітлення під шафами та атмосферне вечірнє освітлення можуть повністю змінити атмосферу вашої ванної кімнати, перетворивши її на простір для релаксації.
Що слід пам’ятати, розробляючи дизайн ванної кімнати?
6. Вибирайте вологостійкі матеріали
Ванна кімната – це приміщення з підвищеною вологістю, тому вибір матеріалів має вирішальне значення для довговічності всього інтер’єру. Варто звертати увагу не лише на плитку, а й на меблі, фарбу, затирку та стільниці. Стільниці з HPL, особливо для раковин, особливо ефективні, оскільки вони вологостійкі та економічніші за кам’яні. Альтернативою є стільниці зі скляним покриттям, які дуже легко мити.
Економія на матеріалах у ванній кімнаті може швидко обернутися проти вас, тому краще вибирати рішення, призначені для таких умов.
7. Подбайте про технічні деталі
Це один з найважливіших, але найменш помітних аспектів. Дизайн ванної кімнати повинен включати правильні технічні рішення з етапу проектування. Ухил у душовій зоні, герметичність вологоізоляційного бар’єру та точність виконання робіт мають вирішальне значення. Вибір затирки не менш важливий; дуже світлі затирки швидко брудняться, тому часто краще вибрати трохи темніший відтінок.
Це деталі, які неможливо побачити на візуалізації, але які визначають довговічність ванної кімнати.
8. Не економте на установці та фурнітурі
Це абсолютно важливий елемент усього проєкту. Дизайн ванної кімнати – це не лише естетика; це система, яка повинна бездоганно функціонувати роками. Найважливішими прихованими елементами в стінах є приховані змішувачі, каркаси унітазів та душові системи. Якщо вони виходять з ладу, ремонт часто пов’язаний з пошкодженням плитки та значними витратами. Ось чому до цих елементів слід ставитися як до інвестиції, а не як до місця для заощадження.
👉 На практиці багато клієнтів вирішують скористатися комплексним дизайном ванної кімнати саме для того, щоб переконатися, що всі технічні рішення добре сплановані та перевірені.
9. Подумайте про легкість прибирання
Дизайн ванної кімнати повинен враховувати щоденне використання, включаючи прибирання.Варто звернути увагу на вибір плитки для підлоги. На гладких поверхнях швидко видно будь-які забруднення, тому краще підійде плитка з ледь помітним візерунком, така як терраццо або плитка під камінь. Це довше зберігає чистоту вашої ванної кімнати та вимагає менше зусиль для догляду.
10. Залиште місце для деталей
Саме деталі визначають кінцевий ефект. Світильники, дзеркала та аксесуари слід враховувати на етапі проектування, щоб забезпечити цілісний загальний вигляд.
Пам’ятайте, що дизайн вашої ванної кімнати потрібно розглядати комплексно. Будь-яке натхнення може бути корисним; не шукайте рішень по одному, з однієї точки зору – добре продуманий інтер’єр підійде найкраще!
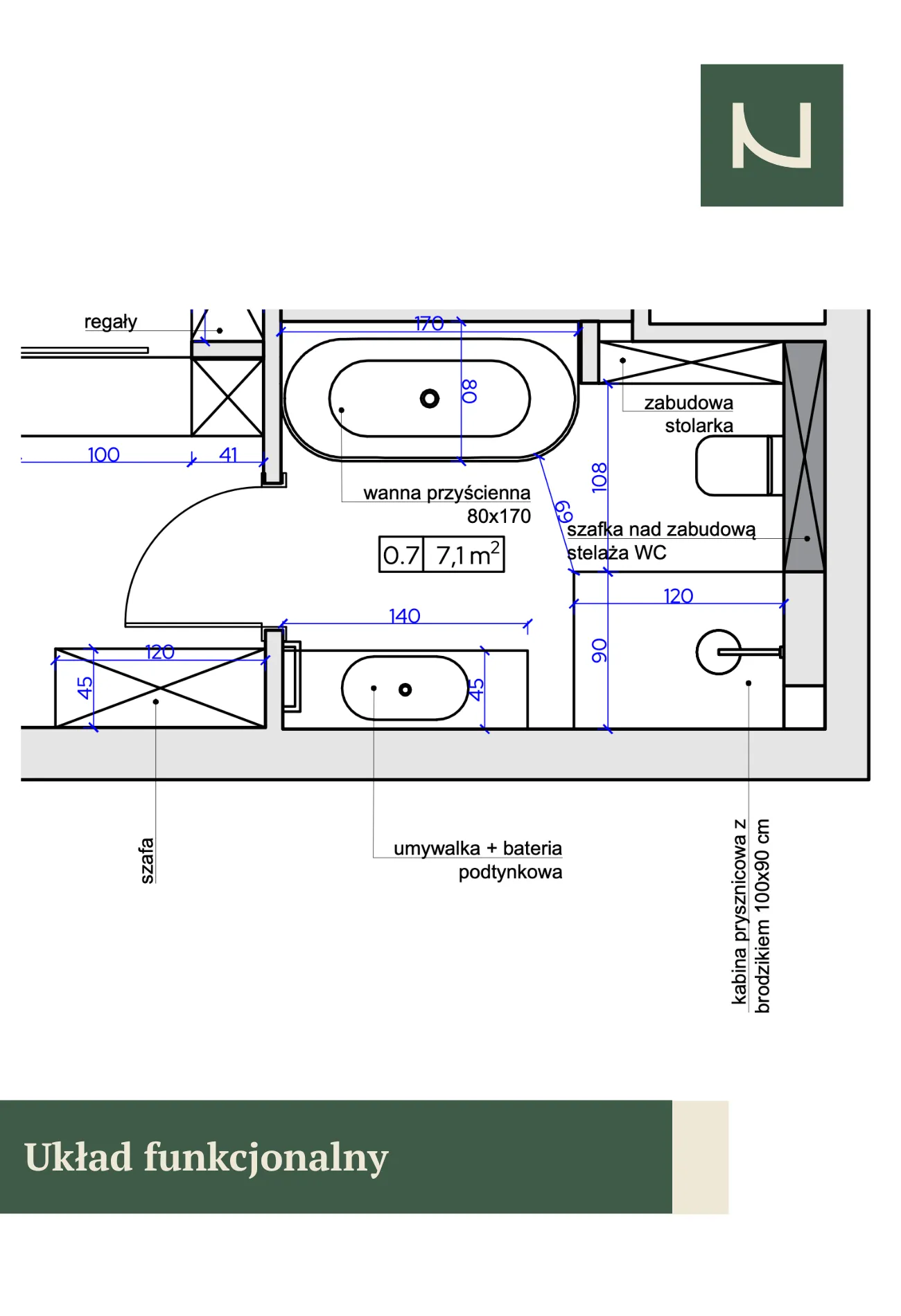
Яким має бути дизайн ванної кімнати?
Професійний дизайн ванної кімнати – це більше, ніж просто візуалізація. Гарний дизайн включає точне функціональне планування, схему сантехніки, вибір матеріалів та технічні креслення для підрядників. Цей етап визначає, чи впровадження проходитиме гладко та без дорогих помилок. Нижче ви побачите зразки технічних креслень, які включають кожен із цих елементів:
Короткий зміст
Добре спроектована ванна кімната – це інвестиція, яка служитиме роками. Варто пам’ятати найважливіші правила:
- продумайте функціональне планування,
- підберіть дизайн до свого способу життя,
- подбати про ергономіку,
- планування зберігання та меблів,
- використовувати освітлення для створення атмосфери,
- вибирайте вологостійкі матеріали,
- уточнити технічні деталі,
- не економте на установці та фурнітурі,
- дизайн з урахуванням легкого очищення,
- забезпечити узгодженість деталей.
Якщо ви хочете ванну кімнату, яка не тільки естетично приваблива, але й функціональна та зручна у використанні, варто інвестувати в професійний дизайн ванної кімнати та її комплексну реалізацію.
👉 Завдяки цьому ви можете бути впевнені, що все, від макета до технічних деталей, було добре продумано.



